Design Notes

Designing a warm and comfortable home for a young family came with its own set of delight and challenges. The idea was to convert a standard three-bedroom London house into a spacious open space for the family. The design process also involved selecting an architect to plan the extension, layouts, lighting, and kitchen. The actual build and an unreliable builder seemed to be a hindrance to the project but we overcame the hurdles. Though the client had a small budget, we were able to create a unique and memorable space with thoughtful planning and sourcing. It has turned out to be a well-realised project that has enriched the client’s living experience.

Gallery

Spatial Design 

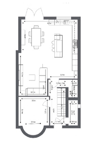
3D Renders

Lighting Plan